Mẫu nhà cấp 4 mái thái được thiết kế theo phong cách hiện đại, cân đối và kiên cố. Tại các khối chân tường được ốp đá cùng các bậc ngũ cấp, hệ thống cột trụ tương đối lớn . Xung quanh nhà được thiết kế khoảng không gian thoáng đãng để trồng cây xanh tô thêm vẻ đẹp cho ngôi nhà. Tường màu kem được sử dụng chính với sự nhẹ nhàng làm tôn phần hệ cửa khung gỗ nâu trầm kết hợp kính. Màu mái tôn xanh lam trông khá lạ mắt, mang đến vẻ đẹp đặc trưng nhà vườn.

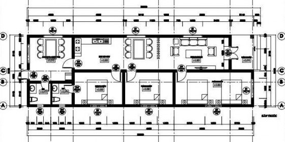
Mẫu nhà cấp 4 mái Thái gồm có 3 phòng ngủ được bố trí bên trong. Trong đó có 1 phòng ngủ master tiện nghi, khu vực phòng khách phòng bếp và ăn thoáng đãng, mát mẻ được bố trí 1 bên. Phía sau cuối nhà chính là 1 phòng vệ sinh cùng với 1 phòng sinh hoạt chung ngoài trời.

Ngoại thất mẫu nhà cấp 4 mái thái 6x20m đầy cuốn hút với sự phối hợp hài hòa màu sắc vô cùng khéo léo. Tông màu trắng chủ đạo kết hợp với màu xanh đậm của hệ mái thái cùng màucủa chân tường tạo nên hiệu ứng thẩm mỹ, thu hút mọi ánh nhìn. Thiết kế mái thái giật cấp với khối đua rộng và độ dốc khá cao giúp công trình thêm cao ráo, sang trọng và giúp việc thoát nước mưa trở nên dễ dàng hơn.

Từ sảnh chính bước vào mẫu nhà đẹp là phòng khách, tiếp giáp với phòng ăn và bếp nấu và được ngăn cách bằng vách ngăn hở, đảm bảo tính thẩm mỹ mà không làm tách biệt không gian. Phòng thờ được thiết kế riêng về 1 góc trái trước nhà, có sửa sổ hướng ra mặt tiền sân vườn nên vô cùng yên tĩnh và thoáng mát. Từ hành lang chạy dọc vào các không gian trong nhà là 3 phòng ngủ được thiết kế gần nhau tạo nên không gian nghỉ ngơi riêng tư, kín đáo. Phòng vệ sinh chung được đặt tại cuối nhà đảm bảo nhu cầu sử dụng của từng thành viên trong gia đình.

Mẫu nhà cấp 4 mái tháicó cách trang trí mặt tiền tương đối đơn giản, bao gồm gạch giả đá ốp chân tường và một vài thanh lam gỗ giúp cho mặt tiền thêm sinh động. Màu sơn chủ đạo của ngôi nhà là màu be sáng, kết hợp với màu của gỗ và đá tạo nên hình ảnh gần gũi. Hệ thống cửa sổ có kích thước lớn, sử dụng để lấy sáng tự nhiên cho sinh hoạt, vừa góp phần tiết kiệm chi phí điện năng chiếu sáng vừa nâng cao chất lượng không gian sống của gia đình.

Do nhu cầu sử dụng và mục đích của gia chủ nên mẫu thiết kế nhà cấp 4 ngang 6m được chia thành các không gian bao gồm: Phòng khách, Phòng bếp kết hợp phòng ăn, 3 phòng ngủ, 1 phòng vệ sinh riêng, 1 phòng vệ sinh chung.

Thay vì sử dụng mái ngói đỏ truyền thống thì mẫu nhà cấp 4 mái tháinày lại sử dụng những gam màu xám, xanh khác nhau để kết hợp với tường sơn trắng. Nhờ đó, tổng thể ngôi nhà sẽ trở nên bắt mắt và hiện đại hơn. Mẫu nhà cấp 4 mái thái sử dụng hệ thống cửa khung gỗ tự nhiên kết hợp vách kính, trong đó cửa chính được chạm các đường viền đơn giản. Những ô kính giúp thu hút nguồn sáng trời tự nhiên và góp phần xây dựng diện mạo trẻ trung, năng động cho ngôi nhà cấp 4.

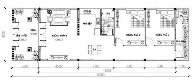
Phương án mặt bằng nhà cấp 4 bao gồm phòng khách, phòng bếp kết hợp ăn, 2 phòng ngủ, 2 phòng vệ sinh chung. Phòng khách được bố trí đầu tiên, tiếp đến là khu bếp. Sau đó đến dãy 2 phòng ngủ. Cuối nhà là 2 nhà vệ sinh và 1 cửa phụ dẫn ra sân phơi. Kiểu thiết kế này tối ưu lượng ánh sáng vào nhà hơn.

Gam màu chủ đạo của mẫu nhà cấp 4 mái thái này là trắng với phần mái đỏ và những khung cửa gỗ giúp ngoại thất trông nổi bật hơn. Bố cục ngôi nhà được thiết kế thanh thoát, vuông vắn, nhất quán, kết hợp với hệ mái kiểu thái đa năng tạo nên một sức cuốn hút nhẹ nhàng. Đồng thời, thiết kế mái thái cũng có công năng là giữ nhà mát mẻ thông thoáng vào mùa khô, ấm cúng kín đáo trong mùa mưa, không bị gió lùa, mưa hắt bởi được mái đua bao quanh che chở.

Nhà cấp 4 này khá tiện nghi, từ sảnh chính đi vào là phòng khách rộng đủ để 1 bộ salon và 1 bộ bàn ăn. Song song với phòng khách là 2 phòng ngủ có diện tích như nhau. Bên trong bếp có cửa phụ đi thẳng vào bếp. Mẫu nhà này có 2 phòng tắm, một phòng có cửa đi vào phòng ngủ, phòng còn lại thông với bếp.

Trên đây là một số mẫu nhà cấp 4 mái thái được ưa chuộng nhất hiện nay mà NBA Việt Nam gửi đến các bạn. Hi vọng bạn sẽ tìm được ý tưởng cho ngôi nhà sắp tới của mình! Nếu bạn đọc có nhu cầu thiết kế, thi công các công trình xây dựng, hãy gọi ngay NBA Việt Nam theo hotline 0985 047887 để được tư vấn nhanh nhất nhé!
Tác giả: NBA Viet Nam
Nguồn tin: NBA
Ý kiến bạn đọc
Những tin mới hơn
Những tin cũ hơn